87

FBK canteen

2008-10

Povo (IT)

Renovation and extension of the campus canteen

Client

Services by SB

Architecture

Engeneering

Monitoring

Fondazione Bruno Kessler

Architectural and HVAC design

Arch. A.Bombasaro, M. Bastiani, G.Uliana

Eng. P.Bombasaro

--

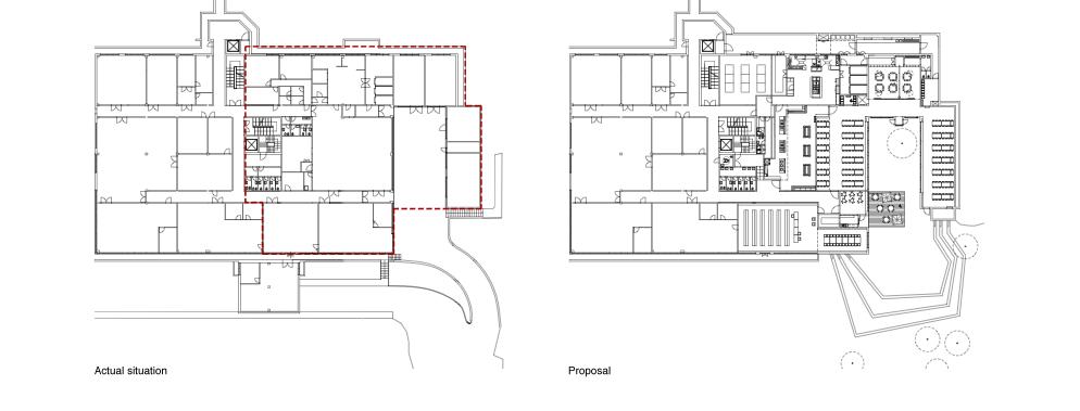
The project for the FBK canteen was initially intended as a simple project to redesign the spaces of the existing cafeteria to serve the employees of FBK campus. Early stages showed the need for a more radical intervention to guarantee quality to the canteen spaces. The project proposes to use some deposits adjacent to the cafeteria and an underutilized yard for loading and unloading for extending the existing the dining hall and organize it around a green courtyard where it is possible to eat outside during good weather. In this way the new cafeteria features a dining room with a U development around a new garden with a view on the south part of the city of Trento. The spaces of food distribution are placed in the innermost part of the building in contact with the existing kitchens. Near the exit from the canteen to the garden it will be realized a cafeteria to serve the entire campus. The dining rooms are designed in a way to allow their use as study rooms after the cafeteria operating hours.

 

 

 

 

 

 

 

fbk canteen plan