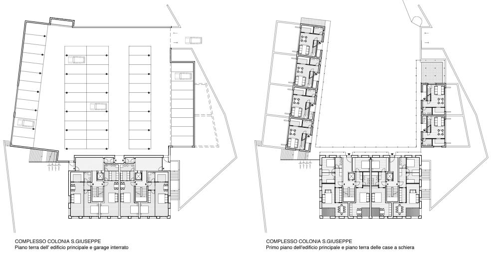
complesso s.giuseppe e ex masadori - pianta primo piano

095

Complesso S.Giuseppe e Ex-Masadori

2009-10

Susà di Pergine (IT)

Riconversione di edifici esistenti in un complesso residenziale