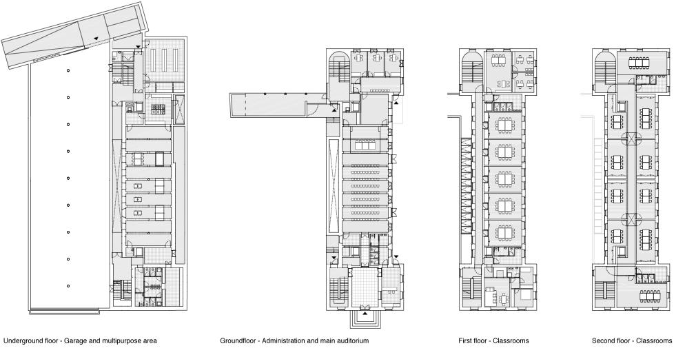
provvidenza oratory - plans

082

Provvidenza oratory

2007-15

Pergine Valsugana (IT)

Renovation and extension of the Provvidenza oratory